[Neighborhood facilities]
Star Plaza in Byeolnae-dong / Poonyang SD Architects
Architects : Poonyang SD Architects
Location : Byeolnae-dong, Namyangju South Korea
Use : Office, Neighborhood facilities
Site Area : 944.20 ㎡
Building Area : 5,359.52 ㎡
Floor : B2 / 7F
Year : 2020
Step : use approval, completed
[ Persprctive View ]
| Perspectivr from sub road behind |
[ Elevation ]
| Front Elevation |
| Rear Elevation |
[ Section ]
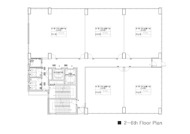
[ Floor plan ]
[ Story for Building ]
🏡 대지는 전면으로는 35m도로 후면으로는 천이 흐르는 지구단위계획이 되어 있는 곳으로서 전면과 후면이 약 3미터 정도의 단차가 있고 같은 규모의 사무실 건물이 옆 대지에 있다. 주변은 층수의 제한으로 7층 정도 높이의 근린생활시설, 사무소 건물들이 공사중에 있다.
🏢 지하층은 경사와 단차를 활용하여 스킵플로어 형식의 주차장을 계획하여 최소한으로 굴착 공사비를 절감하고자 했고 계단과 엘리베이터 화장실을 집중하여 코어를 계획함으로 임대 면적을 최대화하여 이익을 극대화했다. 다만 1층의 후면이 천변과 연결되어 있어 카페의 기능을 갖게 되고 최상층에는 다소 밋밋할 수 있는 임대건물에 조경공간과 쉼터를 계획하여 숨을 쉴 수 있는 공간을 계획하였다.
The site is a district unit plan with a 35m road on the front and a stream flowing on the rear. Neighborhood living facilities and office buildings with a height of about 7 stories are under construction due to the limited number of floors.
For the basement floor, a skip-floor parking lot was planned using slopes and steps to minimize excavation costs, and profits were maximized by maximizing the rental area by planning a core by concentrating on stairs and elevator toilets. However, since the rear of the first floor is connected to the riverside, it has the function of a cafe, and on the top floor, a space for breathing was planned by planning a landscaping space and a shelter in a rental building that can be somewhat plain. @HOONARCH











