[Housing]
Single House in Bonghwa
Architects : Uin Architects + Aim Architects
Location : Bonghwa-gun, Gyeongsangbuk-do, South Korea
Use : Housing
Site Area : 660.00 ㎡
Building Area : 98.00 ㎡
Floor : 1F / attic floor
Year : 2015
Step : Completion
Exterior Material :Clay brick, stucco flex, red cedar siding, aluminum sheet
[ Perspective View ]
두개의 매스로 이루어진 단순한 외관
매스사이로 현관문이 있고 커다란 통창으로 빛을 유입
매스사이로 현관문이 있고 커다란 통창으로 빛을 유입
[ Site plan ]
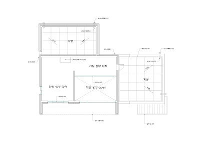
[ Floor plan ]
거실을 중심으로 방, 주방, 식당과 외부공간이 배치됨
[ Elevation ]
[ Section ]
상부 다락공간과 후면, 측면의 테라스는 외부공간을 경험할 수 있음
[ Story for Building ]
앞뒤로 툭 터진 대지위에 그저 심플한 공간
넓은 앞마당이 있고 그저 자연의 변화를 볼 수 있는 큰 창과 데크
계절마다 변화하는 산을 바라볼 수 있는 뒷마당
두 개의 사각형 매스위로 운치를 느낄수 있는 작은 마당과 다락공간
Just a simple space on the open land front and back
There is a large front yard and a large window and deck where you can just watch the changes in nature.
A backyard with a view of the mountains that change with each season
A small yard and attic space where you can feel the charm of two square masses.
@HOONARCH








